Ladera Villa
Ladera Villa is a beautiful property located on public transit route and just a short walk to Valley of the Moon Park, The Coastal Trail, Chester Creek Lagoon and only a mile to downtown attractions. Located between midtown and downtown! We have courtesy patrol, an elevator, and some with gas fireplaces and balconies. This pet friendly, tucked away community will make you feel right at home. Come by and tour this wonderful property! Appointments only.
Office Hours:
Monday - Friday
10:00 AM - 5:00 PM
Units
211
Large 1 bedroom 1 bathroom apartment with a private balcony and a fireplace! Located on the 2nd floor and north facing! Has carpet in the bedroom and vinyl throughout the rest.
306
Large 2 bedroom 1 bathroom apartment located on the top floor corner near Arctic. Has a private balcony and a fireplace! This apartment is south facing towards the parking lot and gets a lot of sunshine!
219
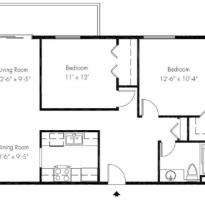
Large 2 bedroom with a dining area! Located on the 2nd floor west facing and has a fireplace.
Amenities
Parking
Unfurnished
Yard
Balcony
Patio
Accepts Vouchers
Pet Policy
Small Dogs Allowed - on approval
Large Dogs Allowed - on approval
Cats Allowed - on approval
Lease Lengths
6 Months
12 Months
Other
Utilities
Resident Pays Electricity
Gas Included
Heat Included
Water Included
Trash Pickup Included


